• home
  • biography
  • projects
  • sketches
  • university
  • contact
  • DE
kuehn-architects
  • home
  • biography
  • projects
  • sketches
  • university
  • contact
  • DE

bank for international settlement, basel, schweiz

interior design, dealing area

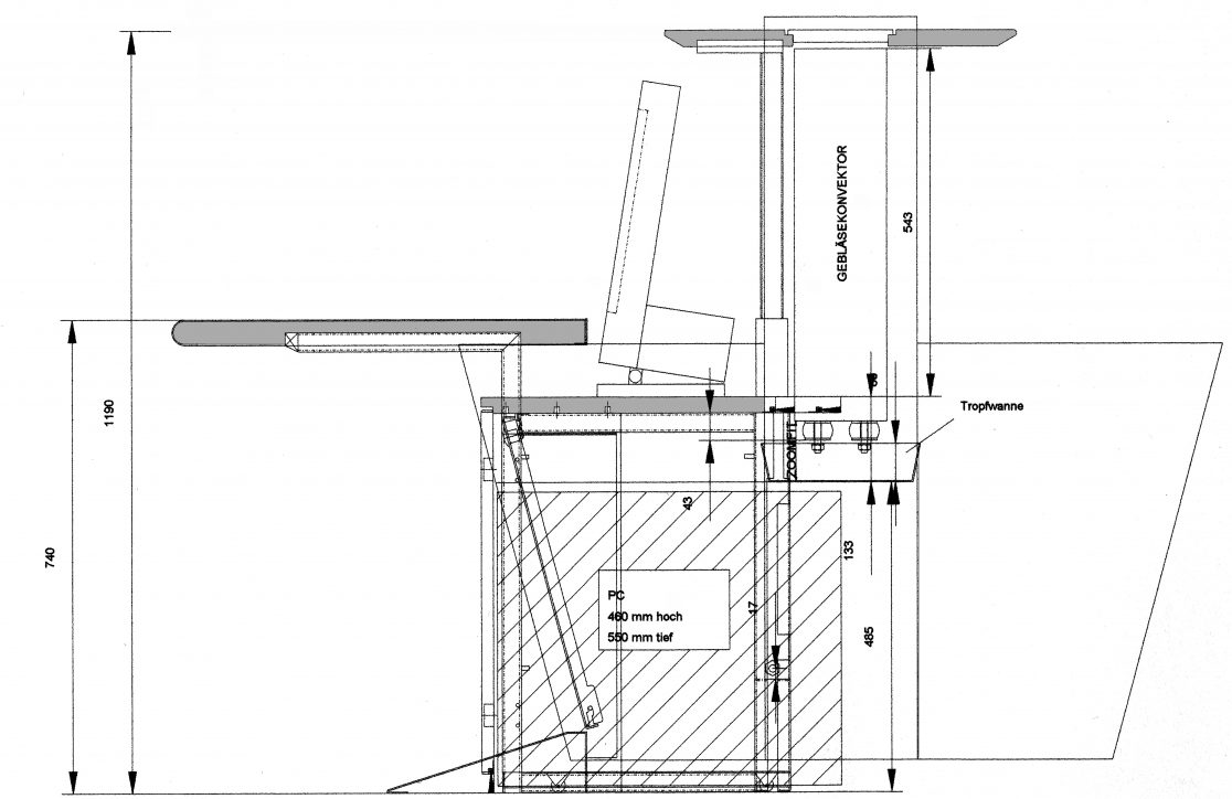
dealing area, bis basel o.m
table configuration n.t.s.
section n.t.s.
dealing area-1
dealing area-2
Previous project
Next project