• home
  • biografie
  • projekte
  • skizzen
  • universität
  • kontakt
  • EN
kuehn-architects
  • home
  • biografie
  • projekte
  • skizzen
  • universität
  • kontakt
  • EN
  • All
  • banken
  • verwaltung
  • justizvollzug
  • bauen im bestand
  • wohnen
  • industriebau
  • wettbewerbe
  • design
  • design:
  • industrial
  • corporate

bank for international settlement, basel, schweiz

chemical bank, los angeles, usa

coba, nl opernplatz, frankfurt am main

dealing furniture

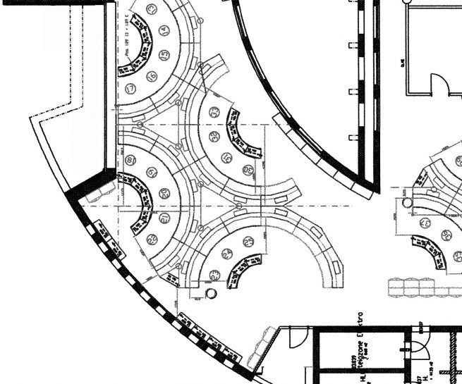
dealing areas, typologie

michael conrad & leo burnett, werbeagentur, frankfurt am main

hauptverwaltung deutsche-amphibolin-werke, DAW, ober-ramstadt

grachtenhaus, utrecht, niederlande

abu dhabi state prison, vereinigte arab. emirate, uae

jva weiterstadt, hessen

jva cottbus, brandenburg

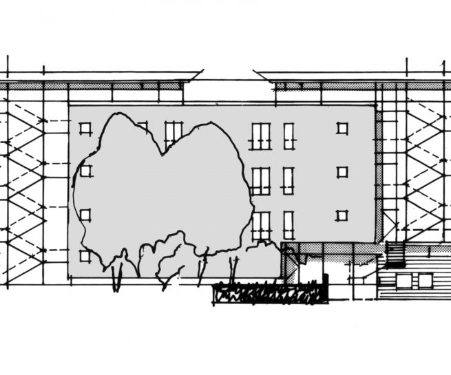
sanierung einer kriegszerstörten villa, untermainkai, frankfurt/ main

DAW SE, konferenz- und tagungszentrum, forst/ weinstrasse

komplettsanierung und ergänzung ehem. klosteranlage, lago maggiore/ italien

wohnhaus umgebung frankfurt/ main

wohnhaus im elsass, frankreich

thiemstrasse, cottbus, brandenburg

norbert stadler, interior technology, offenbach am main

commerzbank, filiale göttingen

commerzbank, filiale halle/saale

mühlenwerke, brandenburg

regierungspräsidium, giessen, hessen

industrial design

corporate design