home
biography
projects
sketches
university
contact
DE
home
biography
projects
sketches
university
contact
DE
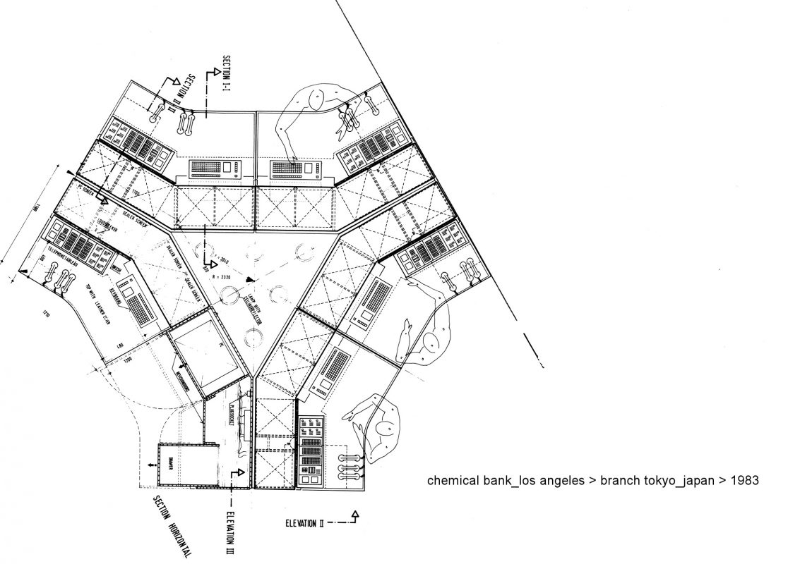
chemical bank, los angeles, usa
tokyo branch, japan
dealing area
groundplan configuration n.t.s.
dealing table arrangement n.t.s.
section n.t.s.
Previous project
Next project