home
biography
projects
sketches
university
contact
DE
home
biography
projects
sketches
university
contact
DE
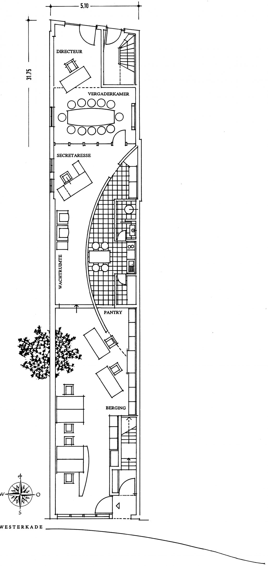
canalbuilding, utrecht, netherlands
office of the foundation for heart transplantation
canalbuilding 31,75 x 5,10m
groundplan n.t.s.
plan head
Previous project
Next project