prison weiterstadt, hessen
modelproject of hessen for the humanisation of the penal system
as a partner in architects- forum, darmstadt
first conecpt
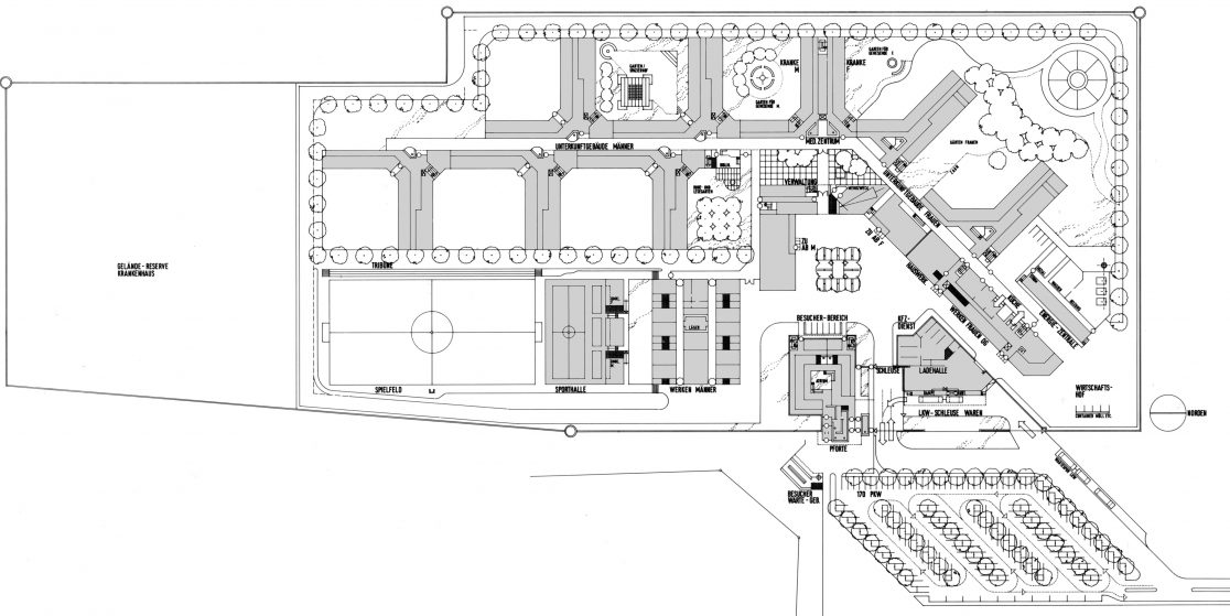
concept ground plan-disposition
aerial view north
entrance/ administration
head office
outdoor centre
outdoor centre
outdoor centre
grid/ facade gable wall
outdoor centre
transparent connection street
therapy-group houses
outdoor centre
view precast facade
typology detention
3-time sports hall
exercise pool
therapy pool
facade conference room
autarkic energy supply
transparent connection street
space in-between
atrium guest house
atrium guest house
library further education
multi-confessional prayer room
multi-confessional prayer room
multi-confessional prayer room
multi-confessional administration room
multi-confessional administration room
space in-between