michael conrad & leo burnett, advertising agency, frankfurt am main
international advertising agency with head offic in chicago/ ill._usa
german branch in frankfurt am main, rödelheim
conversion of former torpedoplant for 300 employees
aerial view/ ffm rödelheim
competition concept
sketched proposal of the body/space relationship
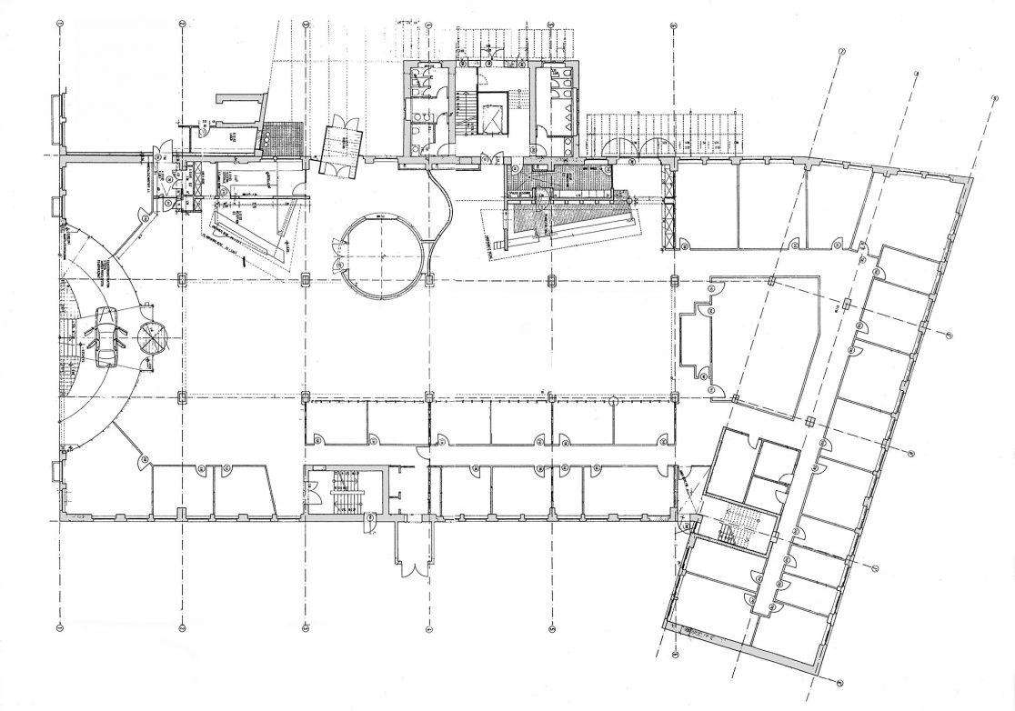
groundplan n.t.s.
section/ view n.t.s.
view alexanderstrasse
facade right of way
back facade
side entrance
receipt of the industrial character
new construction canopy
bridging for the upper floor
view atrium from the entrence
inner facade -steel- upperfloors
caféteria in the hall
atrium from the upper floor
meeting-zone
meeting-zone
room division
atrium
multi-layer steel facade
column cladding in galvanized steel sheet
light reflections on steel facade
space zoning
extensive working zones
hall flooded with light
staircase consisting of stock
sanitary rooms
conference groundfloor
conference open interior zone
daylight in conference room / open interior zone
reception
plan entrence bar n.t.s.
reception
waitzone groundfloor
break zone and bar
bar
vertical development elements
vertical development elements
instep design glass roof
detail construction n.t.s.
shell ceiling break-through
substructure from steel
consisting supporting structure
galvanised sheet steel