• home
  • biography
  • projects
  • sketches
  • university
  • contact
  • DE
kuehn-architects
  • home
  • biography
  • projects
  • sketches
  • university
  • contact
  • DE

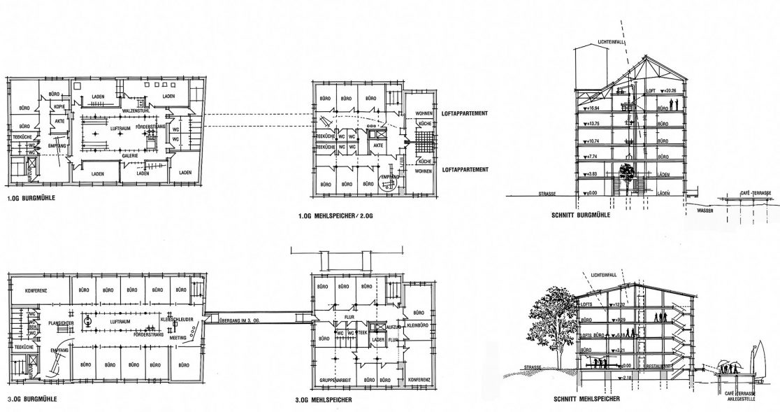
mill, brandenburg

1. price urban development in competition procedure
LEG brandenburg, potsdam
with peter dobrunz, kriemhild velten, architects

aerial view mill
concept sketch
spatial disposition
roomtrail
aerial plan n.t.s.
mill with extensionbuildings n.t.s.
model whole plant
view mill with addition n.t.s.
view mill with addition n.t.s.
ground plan, section n.t.s.
perspective-section n.t.s.
inventory mill
Previous project
Next project