• home
  • biography
  • projects
  • sketches
  • university
  • contact
  • DE
kuehn-architects
  • home
  • biography
  • projects
  • sketches
  • university
  • contact
  • DE

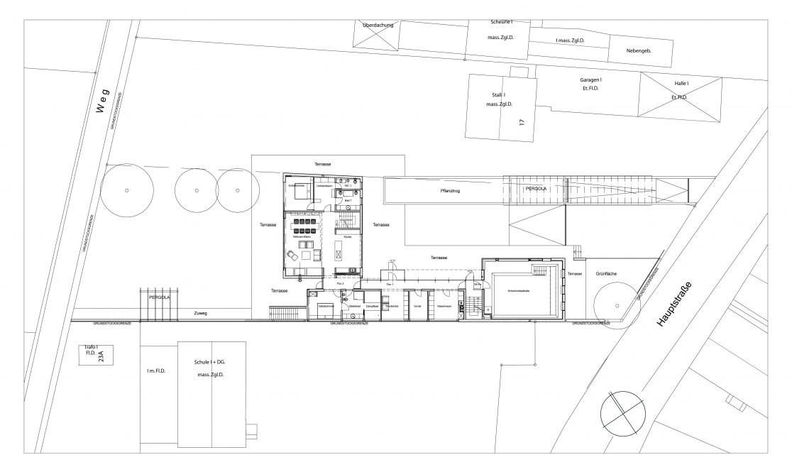
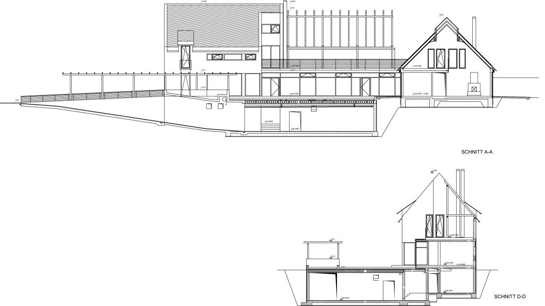
housing near frankfurt/ main

in cooperation with marek schröter, architect

ground floor n.t.s.
section n.t.s.
views n.t.s.
urban environment
court situation
court situation
court situation
view from housing-area
urban environment
facade-detail
simulation galery housing area
eating area
living room
living room
galery
galery with light from above
galery with light from above
kitchen area
kitchen area
sanitary
Previous project
Next project