• home
  • biografie
  • projekte
  • skizzen
  • universität
  • kontakt
  • EN
kuehn-architects
  • home
  • biografie
  • projekte
  • skizzen
  • universität
  • kontakt
  • EN

bank for international settlement, basel, schweiz

interior design, dealing area

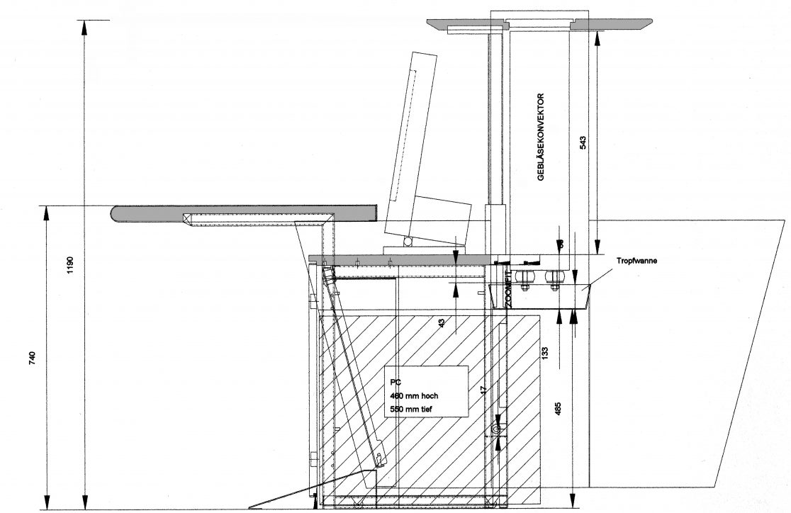
dealing area, bis basel o.m
tischkonfiguration o.m.
schnitt o.m.
handelsraum-1
handelsraum-2
Previous project
Next project