home
biografie
projekte
skizzen
universität
kontakt
EN
home
biografie
projekte
skizzen
universität
kontakt
EN
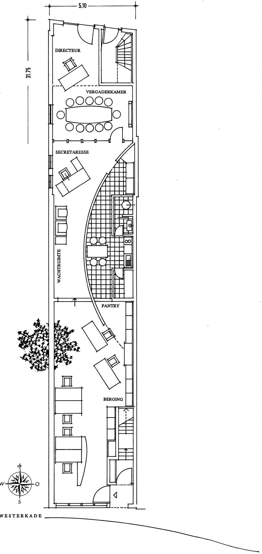
grachtenhaus, utrecht, niederlande
büro einer stiftung für herztransplantationen
grachtenhaus 31,75 x 5,10m
grundriss erdgeschoss o.m.
plankopf
Previous project
Next project