• home
  • biografie
  • projekte
  • skizzen
  • universität
  • kontakt
  • EN
kuehn-architects
  • home
  • biografie
  • projekte
  • skizzen
  • universität
  • kontakt
  • EN

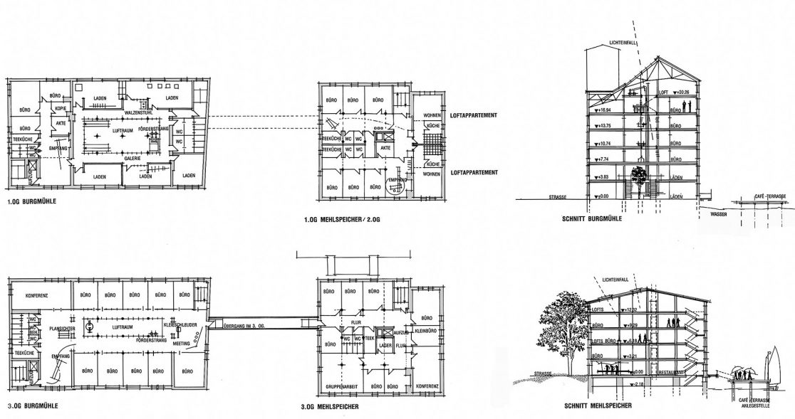
mühlenwerke, brandenburg

1. preis städtebau im wettbewerbsverfahren
LEG brandenburg, potsdam
mit peter dobrunz, kriemhild velten, architekten

luftbild mühlenwerke
konzeptskizze
räumliche disposition
raumfolgen
lageplan o.m.
mühlenwerke mit ergänzungsbauten o.m.
modell gesamtanlage
ansicht mühlenwerke mit addition o.m.
ansicht mühlenwerke mit addition o.m.
grundrisse, schnitte o.m.
perspektivischer schnitt innenraum o.m.
bestand mühlenwerke
Previous project
Next project